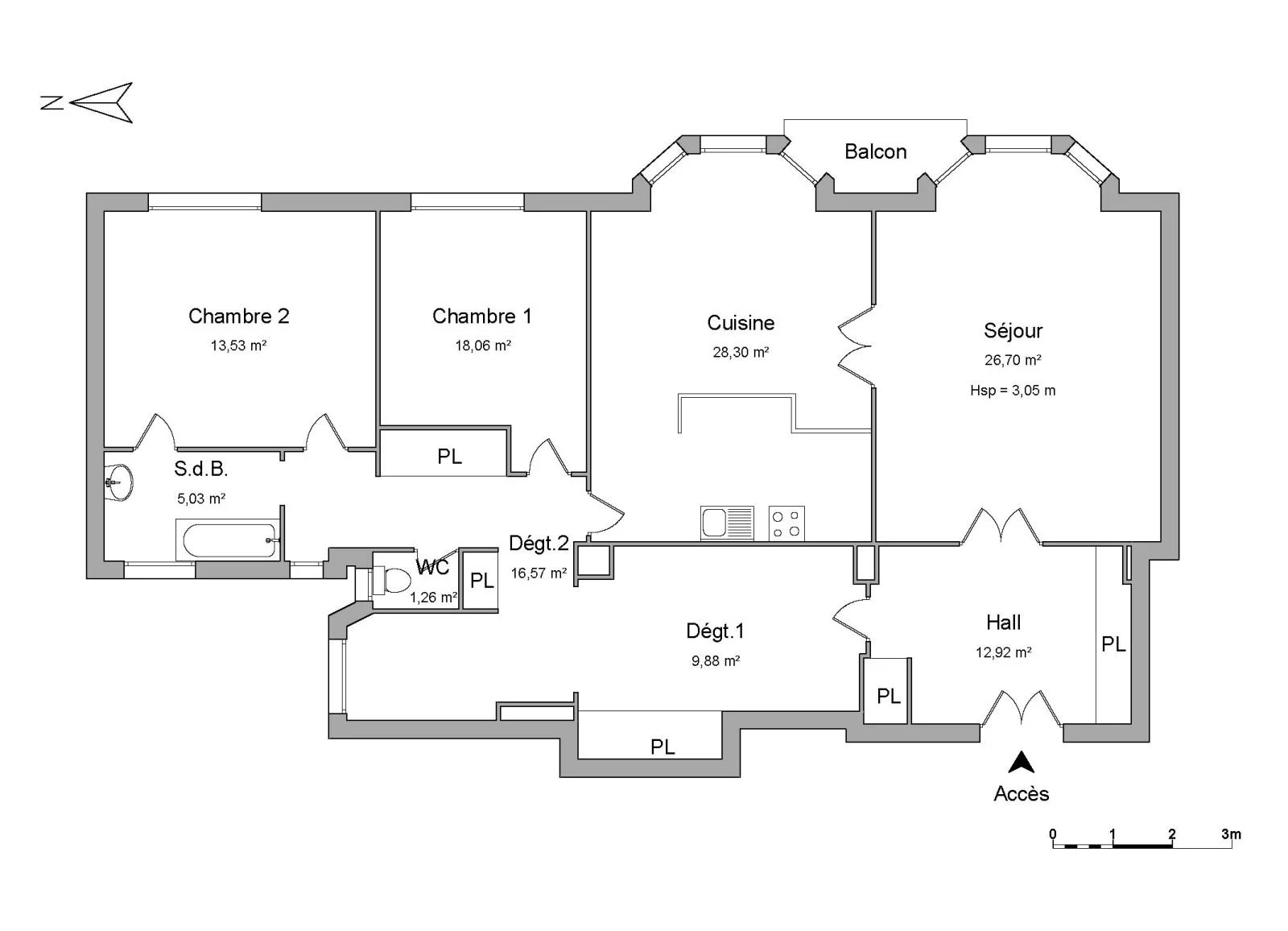
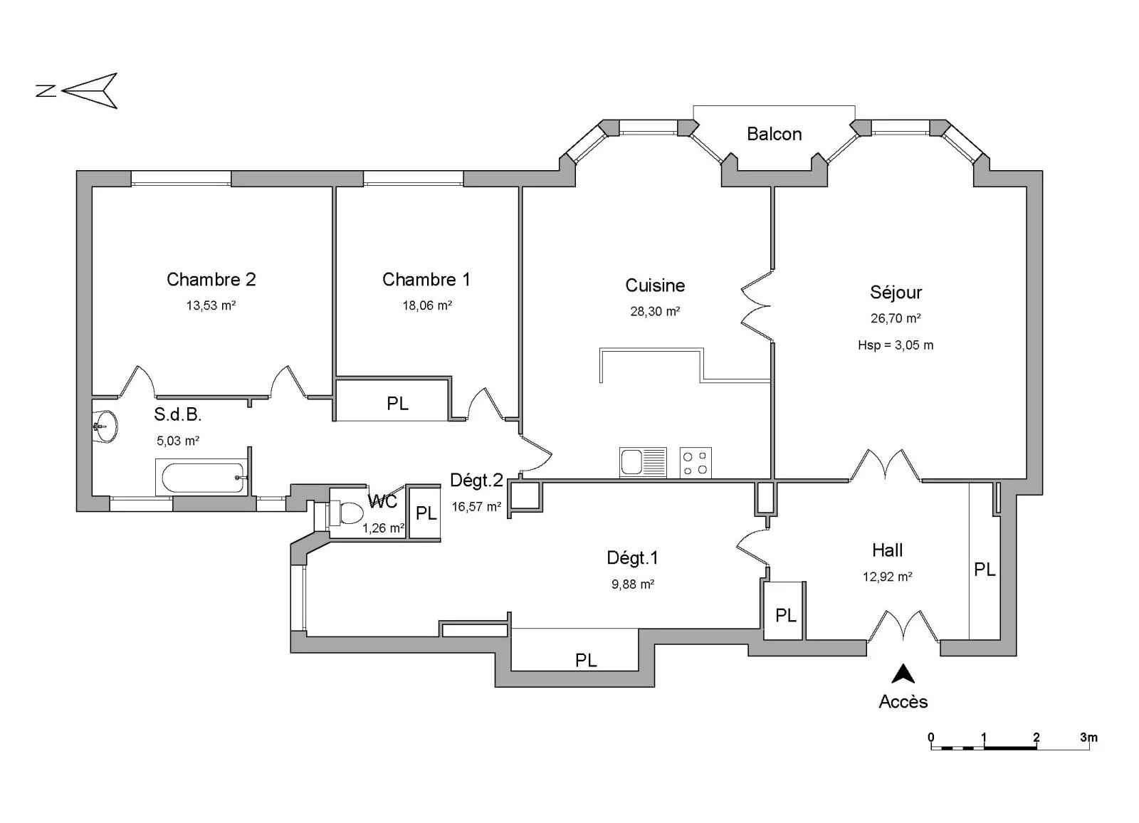
4 pièces
3 chambres
1 salle de bain
750 000 €
Informations sur le bien
Référence agence
EBE7946
Secteur/ Quartier
Les Brotteaux
Type de bien
Appartement
Surface
132 m²
Année de construction
1930
Prix
750 000 €
Charges
1 850 €
Taxe foncière
1 807 €
Honoraires à la charge
du vendeur
Nombre de lots
18
Pièces
4 pièces
Chambres
3 chambres
Salles d'eau / de bain
1 salle d'eau / de bain
Niveaux
1 niveau
Étage
4ème étage
Ascenseur
Oui
Les informations sur les risques auxquels ce bien est exposé sont disponibles sur le site Géorisques : www.georisques.gouv.fr
Diagnostic de performance énergétique
Logement très performant
Logement extrêmement consommateur d'énergie
passoire
énergétique
consommation
(énergie primaire)émission
(énergie primaire)émission
329kWh/m².an
10kg CO₂/m².an
Peu d'émission CO2
Emissions de CO2 très importantes
Découvrir les environs
Découvrir
Brotteaux

SAS My Lyon Property, exploitant du nom commercial BARNES Lyon, traite les données recueillies pour gérer toute demande reçue via ce formulaire de contact. À cette fin, elles seront conservées jusqu'à deux ans après votre dernière prise de contact. Vous pouvez exercer vos droits d'accès, de rectification et de suppression des données qui vous concernent par email adressé à dpo@nobily.fr. Pour en savoir plus sur la gestion de vos données personnelles et pour exercer vos droits, reportez-vous à notre Politique de Confidentialité.
